Facilities
Tennis
Restaurant
Completely renovated in December 2019, Chalet Artemis is an outstanding luxury ski chalet in St Anton featuring a private cinema and indulgent spa area with hot tub, swimming pool, steam room and sauna. Sleeps 12.
Highlights
A sumptuous contemporary styled chalet just 5 minutes drive from St Anton’s ski lifts
Retreat to cosy surroundings with a crackling open fire and plenty of comfy seating for up to 12
Take a day off from the slopes and take a soak in the hot tub, a dip in the pool or relax in the sauna and steam room
The kids will love your own private movie theatre, complete with popcorn machine and retro red velvet seats
Chalet Artemis is arguably one of the finest contemporary chalets in the Alps, with all the comfort and facilities you could ever wish for. Spread over four floors and some 500 square meters, Chalet Artemis is truly spacious and is without doubt one of the most sophisticated chalets in St Anton. You will find only the finest furnishings with exquisite touches throughout, with hypnos beds, Egyptian cotton linen, bespoke mirrors and hand blown vases, you will know instantly that you arrived in luxury.
Chalet Artemis features six large en-suite bedrooms, each with their own theme and finished to the highest standard in comfort and style, located on the ground and first floors, some with their own private balconies. Recently updated, the newly furnished rooms are fully wired for sound and vision with flat screen plasma TVs, top of the range Sonos sound system throughout.
Take the lift to the top floor, home to the open-plan living room and dining area which brings together old and new - Austrian sublime meets 21st century wine wall. A large balcony overlooks the village with a statue of Artemis herself keeping watch over the resort. Gorgeous designer sofas, stunning works of art, and an open log fire define the upstairs living area, which is the perfect place to relax with a glass of champagne before dinner.
Chalet Artemis comes with an exceptional tailored service, with private concierge, chef, chalet host and driver service. You will enjoy bespoke modern alpine dining, offering you whatever you desire starting with a sumptuous breakfast and afternoon tea on seven days a week and exceptional dining on five evenings a week with hand selected pre-dinner drinks, champagne and canapes. Chalet Artemis also comes with a full drinks cabinet to enjoy. A private nanny can be arranged on request.
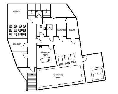
The wellness area on the lower ground floor is the last word in luxury and a fabulous highlight of the chalet. It features an 8m indoor swimming pool, wet room, sauna, steam room and an indoor/outdoor hot tub ideal for easing aching limbs after a day on the slopes.
Not forgetting on the lower ground floor, the private 12-seater cinema with authentic red velvet tiered seating, padded walls and sound insulation making it the perfect space for watching the latest blockbusters and big sporting moments with pop corn and beer fridge.
When to visit
Taking a dip with all your companions in the hot tub with a glass of Laurent Perrier Rose whilst it's snowing - simply magical.
Speak to an Expert on Austria
Our team of travel specialists are waiting to help you book your next adventure.
Enquire NowTennis
Restaurant
Chalet Artemis is situated in the quiet Nasserein area of St Anton with fabulous views over the valley. It is a 5 minute drive with our private deriver service to the main ski lift station and it takes approximately 10 minutes to walk in to St Anton.
Chalet Eden Rock
Artfully blending an authentic traditional exterior with sleek modern interiors, the luxurious Chalet Eden Rock has all the ingredients for the perfect stay, including dedicated staff, 10 ensuite bedrooms, comfortable living spaces, indoor pool and spa
Chalet Frieda
Enjoy the good life at this modern alpine chalet, sleeping up to 10 guests and featuring luxe boutique accommodation, private outdoor sauna and firepit, and dedicated private staff, all just a 2-minute walk from St Anton’s Nasserein Gondola.
Chalet Maria Schnee
With sensational mountain and St Anton Valley views, this wonderfully inviting chalet is infused with Tyrolean charm and modern sophistication, with sauna, gym, and children’s playroom, it’s the perfect ski retreat to enjoy with family and friends.
Chalet 53
A superb base for families and smaller groups, Chalet 53 offers stylish alpine living, a talented chef, friendly host and fabulous location in St Anton, with easy access to the resort’s bars and nightlife and just a 5-minute walk from the chairlifts.
Chalet Kanzi
Boasting a magical alpine setting nestled in St Anton in the heart of the Austrian Alps surrounded by snowy mountains. Indulge in the traditional alpine charm with luxurious expansive living areas, vaulted ceilings, and large panoramic windows.
St. Antoner Hof
The St Antoner Hof is a luxury, boutique family-run hotel located in the heart of St Anton, Austria. The St Antoner Hof combines traditional Tyrolean charm and luxury 5* service, ensuring a thoroughly pampered ski holiday.
Tyrol Hotel
Located in the heart of the St Anton, the four star Raffl's Tyrol Hotel has burst onto the scene in St Anton and is an eclectic mix of trendy design, traditional Tyrolean hospitality with an emphasis on excellent service.